Skip to content
Menu
IBS Immobilien
  • Home
  • Immobilienangebote
    • Kaufen
    • Mieten
  • Wir suchen …
  • Kontakt
  • Anfahrt
  • de
    • en
    • de
Close Menu

Ulm-Vielseitig nutzbares Büro-/Hallengebäude im Industriegebiet Ulmer Donautal

  • Außenansicht
  • Außenansicht
  • Außenansicht
  • Innenhof/Halle
  • Innenhof/Halle
  • Innenhof/Garagen
  • Halle
  • Halle
  • Lager
  • Lager
  • Lagerfläche Empore
  • Büro 2
  • Büro 1
  • Büro 3
  • Büro 3
  • Büro 3
  • Eingangsbereich
  • Teeküche
  • WC Damen
  • WC Herren
  • Sozialraum
  • Sozialraum
  • WC
  • Dusche
  • Grundriss
  • 89079 Ulm
  • Kaltmiete2.245,00 €
  • Nebenkosten600,00 €
  • Baujahr 1976
  • Objektnummer V2262#cL1sB
Erstellt am: 2026-01-22 11:22:46
Zuletzt geändert: 2026-01-22 11:22:46
  • Objektdaten
  • Objektbeschreibung
  • Bilder / Grundrisse
  • Kontaktperson
Objekt / Online - Nr. V2262#cL1sB
Vermarktung Miete/Pacht
Objektart Hallen/Produktion

Preise

Kaltmiete2.245,00 €
Nebenkosten600,00 €

Flächen

Anzahl Stellplätze4
Lagerfläche180,0 m²

Ausstattung

HeizungsartZentral
BefeuerungGas

Objektzustand / Energiepass

Baujahr1976
ZustandMODERNISIERT
  • Energieausweistyp
  • VERBRAUCH
  • Gültig bis
  • 09.01.2028
  • Energieträger
  • Gas
  • Stromwert
  • 10.6
  • Wärmewert
  • 133.5
  • Baujahr
  • 1976
  • Ausstelldatum
  • 10.01.2028
  • Jahrgang des Energieausweises
  • 2014
  • Gebäudeart
  • nichtwohn

Objekttitel

Vielseitig nutzbares Büro-/Hallengebäude im Industriegebiet Ulmer Donautal

Ausstatt_beschr

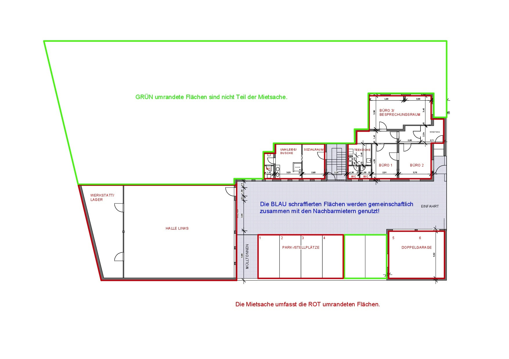
Aufteilung: Hallen/Lagerfläche: 180 m²
(Zusätzl. niedrige Abstellfläche auf Empore über der Lagerfläche,
in der Flächenberechnung nicht enthalten)

Büro/Sozialräume: 110 m²
3 Büroräume, Teeküche, 2x WC, mit separatem Eingang
Sozialraum mit Umkleide und Dusche, WC, mit separatem Eingang

Bauweise:
Halle: Massivbauweise mit Trapezwellblechdach mit neuer Dämmung
Die Halle verfügt über ein elektr. Rolltor mit ca. 3,30 m Höhe und ca. 3,30 m Breite Durchfahrtsmaß

Kabelkanäle:
DV-Dosen, Netzwerk
Netzwerkschrank im Büro

Sonstige Ausstattung:
Teeküche mit Kühlschrank u. Spüle
Komplette Deckenbeleuchtung in Büros/Halle
Einbauschrank weiß und Schreibtischtheke in Büro 3

Diverse Einbauten wie Regale etc. und Büromöbel können nach Absprache vom derzeitigen Mieter übernommen werden

Objektbeschreibung

Vielseitig nutzbares Büro-/Hallengebäude im Industriegebiet Ulmer Donautal gelegen. Gute Verkehrsanbindung in alle Richtungen und für Mitarbeiter Anschluss an den ÖPNV

Sonstige_angaben

Miete: € 2.245,00 + 19% MwSt. € 426,55 = € 2.671,55 Brutto-Kaltmiete p.m.
Nebenkostenvorauszahlung: € 600,00 + 19% MwSt. € 114,00 = € 714,00 Brutto-NK p.m.

  • V2262-Flowfact
IBS Immobilien Markus Kilian
Neu-Ulm-Geräumige 3-Zimmer-Wohnung mit Terrasse in Neu-Ulm/Reutti gelegen.
Immobilien-Übersicht
Back To Top
  • Impressum
  • AGB
  • Datenschutzerklärung
  • Widerrufsbelehrung